
物件コード「M12331」をお伝えください。
| 物件名 | リーベスト高槻 |
| 価格 | 2,880万円 |
| 種目 | 中古マンション |
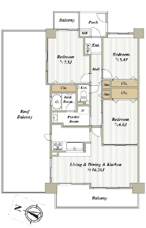
| 間取 | 3LDK |
| 間取詳細 | LDK16.2、洋7.5、洋6、洋5.4 |
| 専有面積 | 77.4m² |
| バルコニー面積 | 12.54m² |
| バルコニー方向 | 北・西 |
| 階/階建 | 6階/地上7階建 |
| 建物構造 | 鉄筋コンクリート造陸屋根 |
| 西暦築年月 | 1998/03 |
| 管理費 | 10,060円 |
| 修繕積立費 | 14,710円 |
| 管理形態 | 全部委託 |
| 駐車場 | 空無 |
| 駐車場月額 | 10,000円 |
| 現況 | 空家 |
| 引渡時期 | 即時 |
| 用途地域 | 第一種中高層住居専用地域 |
| 所在地 | |
| 交通 | JR京都線 摂津富田駅 バス10分 停歩1分 |
| 学区 | 土室小学校 668m/阿武山中学校 748m |
| 諸費用 | |
| 特色 | 駐車場、都市ガス、二階以上、南バルコニー、エレベーター、オートロック、宅配ボックス、給湯、食器洗浄乾燥機、温水洗浄便座、浴室暖房乾燥機、リフォーム履歴あり、空家、即入居可 ※ルーフバルコニー使用料:月1,500円要 |
| 取引態様 | 仲介 |
| 情報更新日 | 2025年12月11日 |
| 次回更新予定日 | 2025年12月12日 |
| 取引条件有効期限 | 2025年12月11日 |
| 物件価格 | 2,880万円 |
| 頭金 | 万円 |
| 内ボーナス | 万円 |
| 金利 | % |
| 借入期間 | 年 |
| 月々の返済額 | |
| ボーナス月 | |
| 年間の返済額 | |
| 返済総額 | |
| 利息合計 |
物件コード「M12331」をお伝えください。
リーベスト高槻 平成10年3月建築・6階・北・西・東の三方角部屋です。2025年10月:室内リノベーション済みです。77.40㎡・3LDKの間取りで、ルーフバルコニー:42.80㎡付です。家具・照明付きです。