紅茸町

価格 780万円

1/6
Point

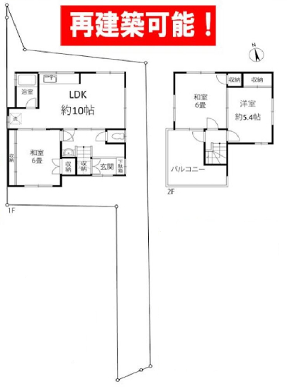
土地面積:約29.62坪・建物面積:66.06㎡・3LDKです。専用通路に車を停めれます(車種制限あり)

物件コード「K10835」をお伝えください。

電話でお問合せ

物件情報

種目 中古戸建
所在地
高槻市紅茸町 地図
価格 780万円
土地面積 97.92m²
建物面積 66.06m²
間取 3LDK
間取詳細 (1階)LDK10、和6、(2階)洋5.4、和6、
西暦築年月 1981/05
建物構造 木造
建ぺい率 60%
容積率 200%
用途地域 第一種住居地域
地目 宅地
土地権利 所有権
借地料 -
接道 南 6.55m(幅員) 公道
接道方向
現況 空家
引渡時期 即時
交通 JR京都線 高槻駅 徒歩25分
JR京都線 高槻駅 バス10分 停歩3分
学区 磐手小学校 460m/第八中学校 270m
諸費用
特色 駐車場、公営水道、公共本下水、都市ガス、準防火地区、南道路、前面道路幅員5m、給湯、空家、即入居可、契約不適合責任免除
取引態様 仲介

更新情報

情報更新日 2026年03月19日
次回更新予定日 2026年03月20日
取引条件有効期限 2026年03月19日

ローンシミュレーション

物件価格 780万円
頭金 万円
内ボーナス 万円
金利
借入期間
再計算
月々の返済額
ボーナス月
年間の返済額
返済総額
利息合計
※ 毎回の返済額が開始から終了まで均等となる「元利均等返済」で算出しています。
※ 金利は期間中固定となる固定金利を採用しています。
※ 月々の返済額は小数点以下を繰り上げしております
※ シミュレーションでの結果は、あくまでも目安で、概算になります。実際にローン契約をする際は、詳細を金融機関にご確認ください。
※ 実際のローン契約時には諸費用・税金(手数料や印紙税、保証料など)が別途かかりますので、契約の際にご確認ください。

物件コード「K10835」をお伝えください。

電話でお問合せ
電話でお問合せ メールでお問合せ
メールでお問合せ
OK