|
中古戸建
[価格]
3,480万円
塚脇1丁目
|
||||
|---|---|---|---|---|
| 所在地 | 沿線/駅 バス徒歩 |
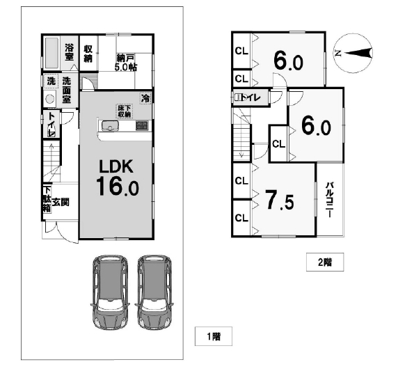
構造 間取 |
土地面積 建物面積 |
築年月 引渡時期 |
| 高槻市塚脇1丁目 | JR京都線/高槻駅 バス12分 停歩3分 |
木造スレート葺 4LDK |
120.37m² 98.01m² |
2019/11 相談 |

| 物件番号 | 12647 | 物件名 | 塚脇1丁目 |
|---|---|---|---|
| 住所 | 高槻市塚脇1丁目 | 種目 | 中古戸建 |
| 交通 | JR京都線 高槻駅 バス12分 停歩3分 | ||
| バス停名 | 伏原 | バス停時間 | 3分 |
| 土地面積 | 120.37m² | 土地面積(坪) | 36.41坪 |
| 私道面積 | - | セットバック | |
| 建物面積 | 98.01m² | 建物面積(坪) | 29.64坪 |
| 間取 | 4LDK | 建物構造 | 木造スレート葺 |
| 西暦築年月 | 2019/11 | 築年数 | 築6年 |
| 接道 | 西 6.2m(幅員) 公道 | 駐車場 | 有 |
| 土地権利 | 所有権 | 借地料 | - |
| 都市計画 | 市街化区域 | 用途地域 | 第一種低層住居専用地域 |
| 建ぺい率 | 50% | 容積率 | 100% |
| 学区 | 清水小学校 第九中学校 |
現況 | 居住中 |
| 引渡時期 | 相談 | 取引態様 | 仲介 |
| 特色 | 駐車場、公営水道、公共本下水、都市ガス、前面道路幅員6.2m、全居室6帖以上、ペアガラス、給湯、床暖房、浴室暖房乾燥機、温水洗浄便座、2階トイレあり、屋根裏収納庫、カラーモニター付インターフォン | ||
| 取引条件有効期限 | 2026年03月18日 | ||
|
地図を右クリックでルート検索が可能です。
|