|
中古戸建
[価格]
4,680万円
月見町
|
||||
|---|---|---|---|---|
| 所在地 | 沿線/駅 バス徒歩 |
構造 間取 |
土地面積 建物面積 |
築年月 引渡時期 |
| 高槻市月見町 | JR京都線/高槻駅 徒歩16分 |
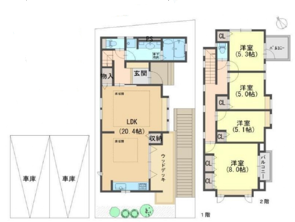
木造 4LDK |
150.41m² 105.16m² |
2007/01 即時 |

| 物件番号 | 12400 | 物件名 | 月見町 |
|---|---|---|---|
| 住所 | 高槻市月見町 | 種目 | 中古戸建 |
| 交通 | JR京都線 高槻駅 徒歩16分 | ||
| バス停名 | バス停時間 | ||
| 土地面積 | 150.41m² | 土地面積(坪) | 45.49坪 |
| 私道面積 | - | セットバック | |
| 建物面積 | 105.16m² | 建物面積(坪) | 31.81坪 |
| 間取 | 4LDK | 建物構造 | 木造 |
| 西暦築年月 | 2007/01 | 築年数 | 築18年 |
| 接道 | 南 5m(幅員) 公道 位置指定無 8.2m(接面) | 駐車場 | 有 |
| 土地権利 | 所有権 | 借地料 | - |
| 都市計画 | 市街化区域 | 用途地域 | 第一種低層住居専用地域 |
| 建ぺい率 | 50% | 容積率 | 100% |
| 学区 | 芥川小学校 1,120m 第二中学校 2,000m |
現況 | 空家 |
| 引渡時期 | 即時 | 取引態様 | 仲介 |
| 特色 | 駐車場(シャッター付掘り込み)、公営水道、公共本下水、都市ガス、南道路、給湯、食器洗浄乾燥機、床暖房、浴室暖房乾燥機、温水洗浄便座、2階トイレあり、床下収納庫、、カラーモニター付インターフォン、空家、即入居可 | ||
| 取引条件有効期限 | 2025年12月06日 | ||
|
地図を右クリックでルート検索が可能です。
|